

Villa sur les dunes
Conformément à l’Article UB5 du PLUI qui dispose que tout bâtiment doit être édifié pour tous ses niveaux à l’alignement,
Et conformément à la règle alternative d’une OAP (th.18) le justifiant, le bâtiment reconstruit est édifié (pour ses 2 niveaux) en reculement de l’OAP ; ainsi, le projet assure la continuité du bâti dans son environnement immédiat, et notamment par rapport aux constructions voisines.
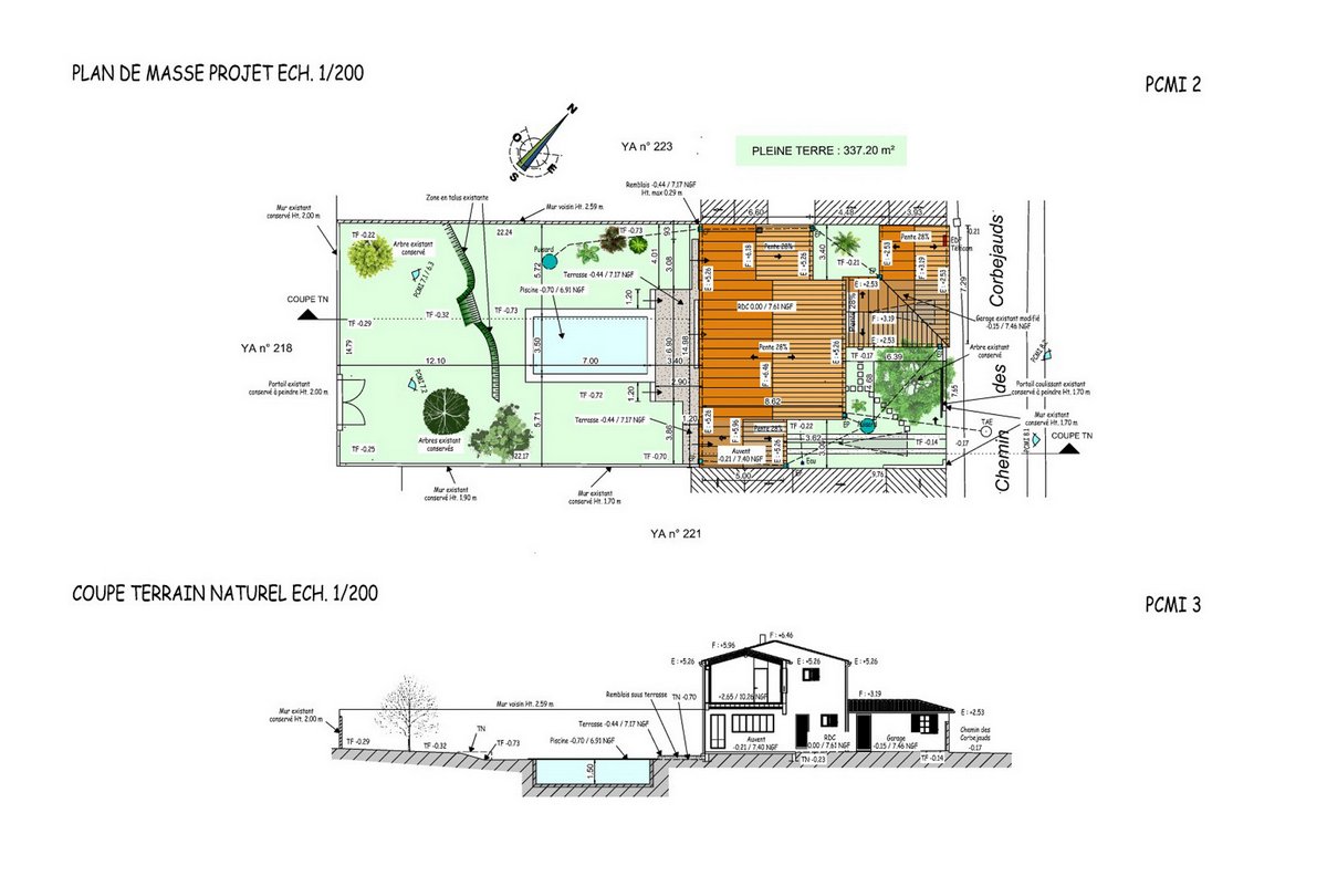
La superficie de l’étage occupe la totalité de la surface du rez-de-chaussée, hors emprise du garage.
Au niveau altimétrie, le terrain n’est pas situé dans une zone impactée par les risques de submersion.
L’architecture du projet est constituée de volumes simples aux faitages axés, à l’Architecture cohérente et bien intégrée dans son environnement sur rue comme sur l’espace naturel :
La façade sud-ouest vitrée sur mer et soleil affirmera sa situation en site naturel et protégé.
La façade NORD-EST relookée avec des éléments architecturaux traditionnels affirmera côté rue la typologie locale des maisons de l’ile de Ré.
Données et matériaux
Surface de plancher avant travaux : 99 m²
Surface de plancher démolie : 99 m²
Surface de plancher créée : 187 m²
SURFACE TOTALE : 187 m²
La maçonnerie des bâtiments est recouverte d’un enduit blanc lissé plat réalisé à la truelle.
Les pans de toitures de l’existant sont constitués de tuiles type tige de botte à plusieurs tons mêlés, et environ 0,28 de pente moyenne. Le faitage du bâtiment rehaussé sera axé pour conserver une harmonie d’ensemble et une cohérence de matériaux.
Visibles depuis la rue, les menuiseries extérieures seront conformes au gabarit réthais, à 3 carreaux plus hauts que larges, en PVC de ton blanc, équipées de volets battants en bois peint selon la palette autorisée (RAL 6003).
Il est à noter que la fenêtre type atelier du garage ouvrant sur la cour d’entrée et visible de la rue sera remise au gabarit réthais, avec volets bois.
Non visibles du domaine public, côté mer, il est proposé de larges fenêtres atelier de ton gris souris (RAL 7005) ; il est à noter que cette façade est exposée face à un espace naturel protégé, interdit aux piétons et tous véhicules.


































