

Au détour d'une venelle
Le projet est implanté à l’alignement sur la voie privée qui borde le terrain. Il est adossé en limite séparative nord à la propriété voisine.
Il comprend un étage sur la totalité (hors garage) du volume en premier rang.
L’architecture du projet est constituée de volumes simples et lumineux, en rapport avec l’architecture de village que l’on peut observer dans les bourgs locaux.
La simplicité et le rythme des pleins et des vides sur les façades extérieures, ainsi que certains éléments architecturaux viennent souligner la typologie que l’on observe sur les constructions de village rétais, savoir : le soubassement en coaltar noir, le linteau de la porte de garage en bois de récupération, une «babouette» en pierres massives axées sur la composition de façade…
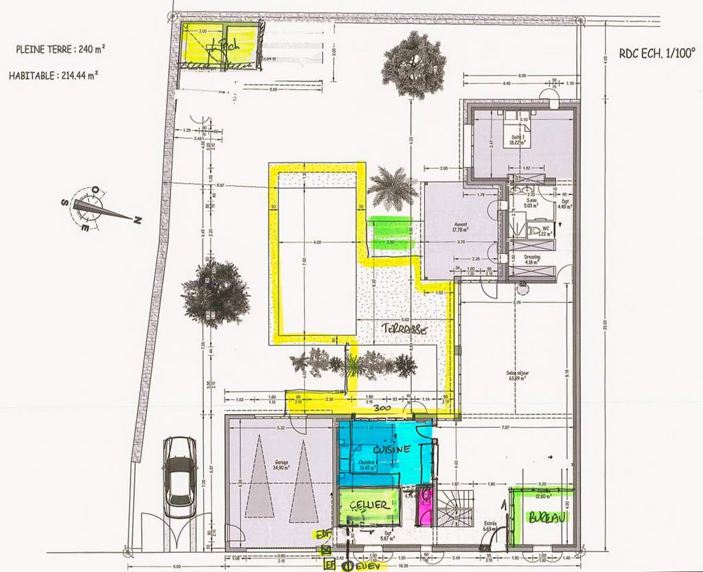
Données et matériaux
Surface de plancher créée : 224 m²
SURFACE TOTALE : 224 m²
La maçonnerie des bâtiments est recouverte d’un enduit blanc lissé plat réalisé à la truelle.
À noter qu’une partie du bâtiment sera recouverte d’un parement de moellons de pierres sèches.
Les pans de toitures du projet sont constitués de tuiles type tige de botte à plusieurs tons mêlés, et environ 0,28 de pente moyenne.
Les menuiseries extérieures ouvertes sur la rue seront de ton blanc avec volets battants en bois, peints selon la palette autorisée (RAL 6021).
Les menuiseries intérieures du type atelier et non visibles de la rue seront en alu laqué de ton gris RAL 7005.
Les portails et portes sont en bois peints selon la palette autorisée (RAL 6021).




























