

Immeuble secteur sauvegardé
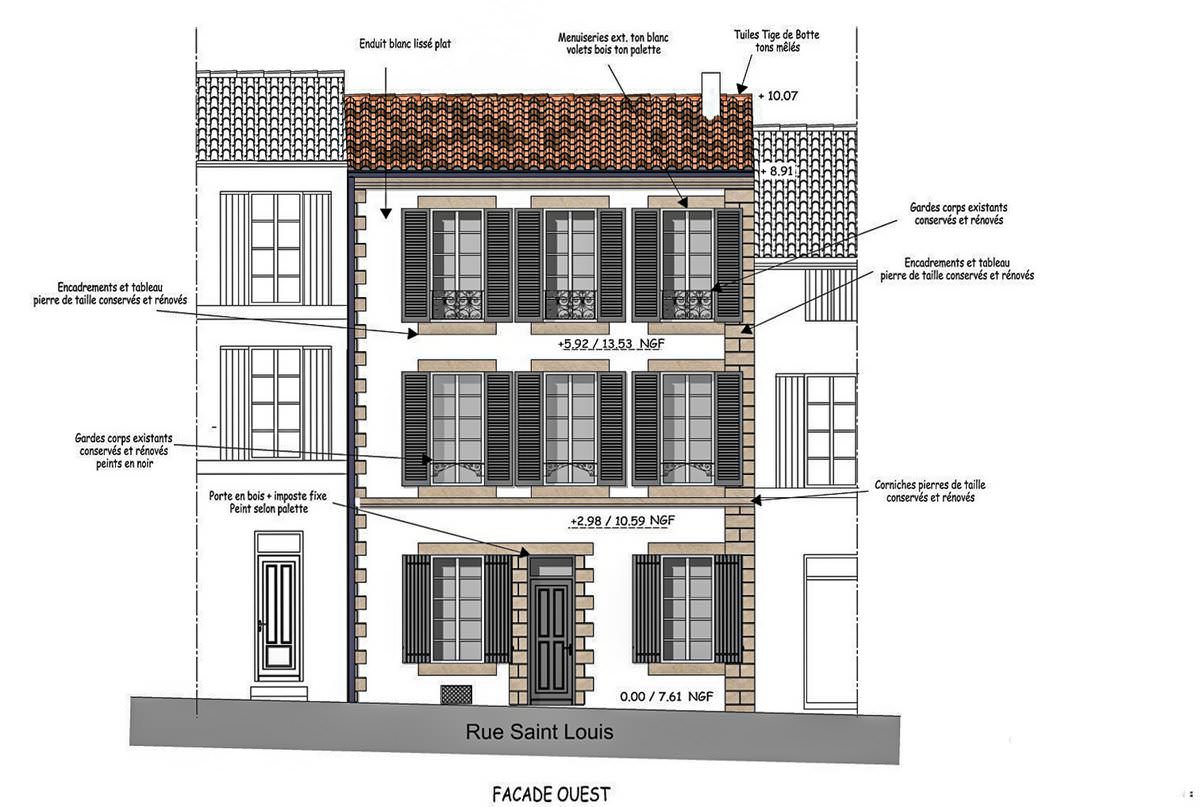
Les travaux relatifs à la restauration complète de l’ensemble architectural sont à appréhender en termes de conservation et de restitution de l’immeuble dans son état ancien au niveau du patrimoine.
En conséquence , il est proposé :
La réouverture de la cour d’origine, par la suppression de la dalle pavée.
La restauration de la façade en alignement sur la rue Saint-Louis, sans autres modifications que la remise en état des existants.
La conservation du volume et des ouvertures des bâtiments existants, sur l’ensemble de la propriété, et restaurations complètes des fenêtres et encadrement pierres de taille s’y rapportant.
Conservation de la structure légère reliant le bâtiment rue et le bâtiment cour, par la rénovation et la consolidation par l‘intérieur de l’aile de liaison traitée en « colombages » ; là encore les ouvertures seront conservées à l’existant et aménagées de menuiseries en bois à l’isolation performante.
Données et matériaux
Surface de plancher créée : 184 m²
SURFACE TOTALE : 184 m²
Les enduits anciens seront purgés avec soin et refaits « à plein ». Les couronnements seront restaurés en recherche.
Il sera procédé à la réfection des enduits sur toutes les surfaces intérieures et extérieures, habillant l’existant et notamment la cour centrale.
Il sera employé un mortier de chaux aérienne éteinte pour le bâtiment (CAEB) teinté avec un mélange de sable jaune et ocré. La finition sera lissée.
La couverture sera réalisée en tuiles canal de réemploi. Les tuiles anciennes seront posées en chapeau sur des tuiles en courant de teintes vieillies.


























