

La cabane sur la côte
Il est proposé un bardage bois sur certaines des façades non visibles de la rue. L’essence proposée est le Red-Cedar peint de ton gris.
Les pans de toitures de cet ensemble sont constitués de tuiles type tige de botte à plusieurs tons vieillis. Les pentes de ces toitures seront voisines de 28%.
Une chanlatte débordante dépassant de 0,20m est prévue en bas de pente de chaque pan.
Une rive à la rhétaise selon les prescriptions locales est prévue sur les murs pignons.
Données et matériaux
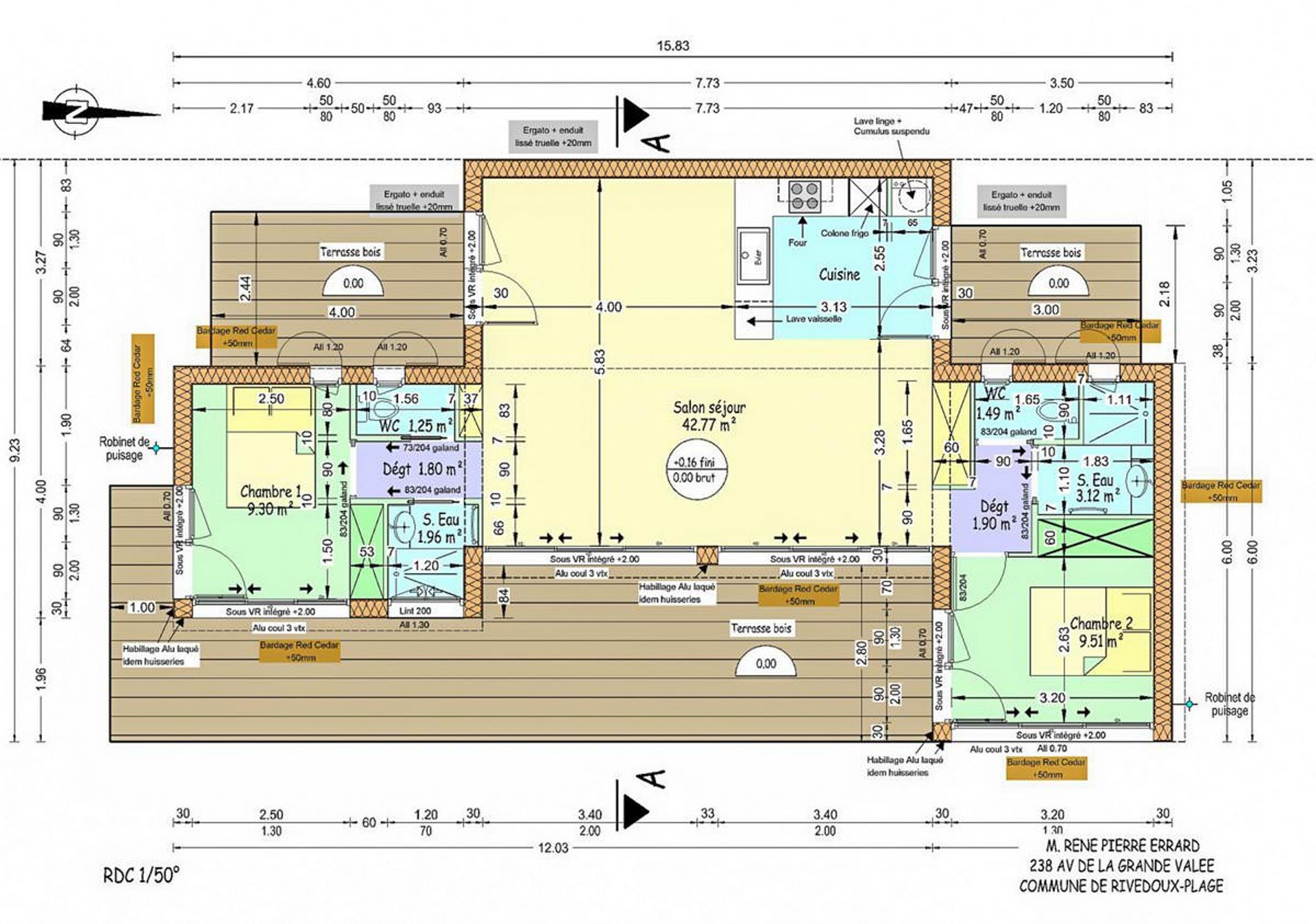
Surface de plancher avant travaux : 40 m²
Surface de plancher créée : 35 m²
SURFACE TOTALE : 75 m²
Bardage BOIS en Red-Cedar (cèdre rouge du Canada ou similaire, imputrescible-classement M1 ) peint de ton gris.
Les menuiseries extérieures non visibles de la rue seront en alu laqué, de ton gris foncé. Les ensembles vitrés ouvrant sur le pertuis (non visibles de la rue) seront liaisonnés entre eux (poteaux de liaison et structure) par un recouvrement en alu laqué de couleur idem aux menuiseries extérieures.























