

La Flotte centre historique
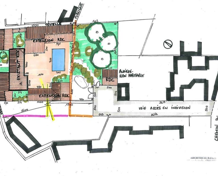
Le projet est implanté complètement à l’alignement côté Venelle publique.
Au niveau Altimétrie, les dalles finies du projet sont prévues au maximum à 30 cm au-dessus de la voie ou du terrain naturel.
La venelle publique n’étant large que de 1,20 m, il ne sera pas possible de créer des fenêtres sur cet espace. Toutefois, il est proposé des portes pleines en bois massif à lames peintes selon la palette autorisée. La porte d’entrée ouvrant sur la venelle publique est haute de 2,00m, et il est proposé une imposte fixe au-dessus de cette dernière à toute fin de personnalisation de la propriété.
Le mur du projet bordant la venelle à été étudié pour être le moins haut possible, relevé avec un soubassement au coaltar noir. Seront visibles de la venelle les chanlattes des espaces habitables, en alternance avec les faitages des culs levés, donnant à la propriété une typologie de propriété rhétaise ancestrale.
Données et matériaux
Surface de plancher avant travaux : 59 m²
Surface de plancher créée : 152 m²
SURFACE TOTALE : 211 m²
La maçonnerie des bâtiments est recouverte d’un enduit plat blanc lissé blanc.
Les pans de toitures sont constitués de tuiles type « tige de botte », à plusieurs tons vieillis. Les pentes des toitures seront aménagées à environ 0,28 % de pente moyenne.
Les menuiseries extérieures seront de ton gris clair, en aluminium pour les baies type atelier, en bois ton blanc pour celles équipées de volets battants. Les volets battants sont en bois à lames larges peints en Vert selon la palette autorisée.




























