Collectifs
Immeubles d'architecture contemporaine et locale
Fort d'une riche implantation locale et de nombreuses années d'expériences, nous développons des projets d'envergure avec des promoteurs, des entreprises et des particuliers. Notre expertise et notre connaissance du terrain nous permettent de répondre à vos exigences et d'aboutir des projets complexes à des prix compétitifs dans le planning requis.
Nous sommes à même de créer votre projet en respectant les normes d'urbanisme locale, environnementales liées au PPRN, d'accessibilité et de sécurité.
Construction sur La Rochelle et ses environs, sur l'Ile-de-Ré de Rivedoux-Plage, Sainte-Marie-de-Ré, Le Bois-Plage-en-Ré, La Flotte-en-Ré, Saint-Martin-de-Ré, La Couarde-sur-Mer, Loix, Ars-en-Ré, Saint-Clément des Baleines aux Portes-en-Ré.


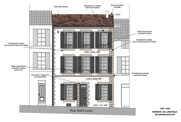
Conception et construction de bâtiments collectifs sur l’Île de Ré
Nous accompagnons les collectivités, promoteurs et investisseurs privés dans la conception et la construction de bâtiments collectifs à La Rochelle et en Charente-Maritime.
Notre double compétence architecture + construction permet une approche rationnelle, durable et maîtrisée.


Logements collectifs et programmes immobiliers
Nous intervenons sur :
Immeubles de logements
Résidences collectives
Programmes immobiliers privés
Bâtiments mixtes (logements + commerces)
Chaque projet vise :
la qualité architecturale
l’optimisation des coûts
la performance énergétique
le respect des normes en vigueur


Une maîtrise technique et réglementaire complète
Les bâtiments collectifs impliquent des contraintes fortes :
réglementation incendie
accessibilité PMR
normes environnementales
coordination de multiples corps d’état
Nous assurons une maîtrise d’œuvre complète, depuis les études jusqu’à la livraison.


Une architecture durable et intégrée
Nos projets s’inscrivent dans une démarche :
d’architecture durable
d’intégration urbaine
de pérennité des matériaux
Chaque bâtiment collectif est conçu pour s’inscrire harmonieusement dans son environnement.

